Ekerö
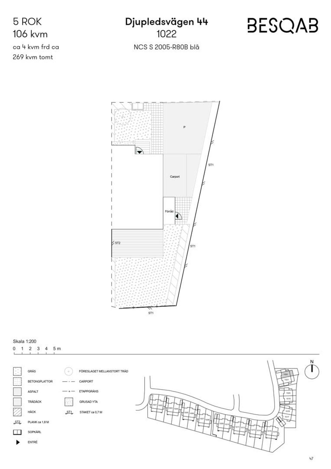
Ekerövallen Sjösidan 1022, 5 rok, 106 kvm















| Pris | 5 600 000 kr |
|---|---|
| Avgift | 5 256 kr |
| Yta | 106 kvm |
| Rum | 5 rok |
| Våning | 2 |
| Status | Såld |
| Objektsnr | 1022 |
| Boendeform | Bostadsrätt |
Familjeidyll på södra Ekerö - Egen altan, trädgård och carport!
Med möjlighet till snabb inflyttning om så önskas! Passa på att redan nu i sommar njuta av livet vid Mälarens vatten!
Välkommen till Brf Ekerövallen Sjösidan och detta trivsamma & trevliga tvåplanhus, perfekt för de som söker både ett bekvämt så som funktionellt hem. Här erbjuds öppna och ljusa sällskapsytor med kök och vardagsrum i en härlig öppen planlösning på entréplan, medan sovrummen och allrum ligger på övre plan. Här finn även två helkaklade badrum, varav ett med praktiska tvättmöjligheter samt badkar på entréplan.
Bostaden om 106 kvm är mycket väldisponerad och erbjuder stora möjligheter att enkelt skapa ett fjärde sovrum om så önskas. Ett okomplicerat och bekvämt boende, bara att flytta in och börja njuta!
Här får familjen en naturlig uppdelning mellan sociala ytor och privata utrymmen. Planlösningen är både flexibel och omsorgsfullt planerad för att maximera ljusinsläpp och skapa en möblerbar och trivsam miljö.
Den trevliga trädgården med egen stor altan inbjuder till härliga stunder samt skapar en perfekt oas för avkoppling och sociala stunder utomhus.
I anslutning till huset finns en carport med eluttag samt ytterligare parkeringsmöjlighet på uppfarten. Här bor du bekvämt med närhet till matbutiker, restauranger, gym, förskolor och skolor – allt inom gångavstånd!
Husen är byggda i trä som vackert knyter an till den omkringliggande naturen och de äldre uppvuxna villaområden. Enkelhet, tidlöshet, kvalitet och funktion är begrepp som förknippas med skandinavisk design. Det är också temat för inredningen i bostäderna. Ett hem ska tåla generationers användning, från morfars bullbak på köksbänken i komposit till barnens leriga stövlar på klinkergolvet i hallen. Du känner även naturens andetag i allt från de stora fönsterpartierna, det vackra enstavsparketten och väggarnas sobra färger som ger ett stilrent intryck.
Ekerövallen är en modern trädgårdsstad med många fantastiska kvalitéer! Med närhet till Mälaren, förskolor, skolor, livsmedelsbutiker, idrottsanläggningar och bra kommunikationer finns alla förutsättningar för ett bekvämt och aktivt liv, endast 20 km från Stockholms city!
Välkommen hem!
Visning
Vad roligt att du vill komma på visning.
Kontakta ansvarig mäklare för att boka en tid, välkommen!
Bostäder
| Nummer | Våning | Antal rum | Storlek | Pris | Avgift | Status |
|---|---|---|---|---|---|---|
| 1001 | 2 | 5 rok | 106 kvm | Såld | ||
| 1004 | 2 | 5 rok | 106 kvm | Såld | ||
| 1007 | 3 | 6 rok | 139 kvm | Såld | ||
| 1011 | 3 | 6 rok | 139 kvm | Såld | ||
| 1012 | 2 | 5 rok | 106 kvm | Såld | ||
| 1013 | 3 | 6 rok | 139 kvm | Såld | ||
| 1014 | 2 | 5 rok | 106 kvm | Såld | ||
| 1015 | 3 | 6 rok | 139 kvm | Såld | ||
| 1016 | 2 | 5 rok | 106 kvm | Såld | ||
| 1017 | 2 | 5 rok | 106 kvm | Såld |
Restider
I närheten
Mer om projektet
Ekerövallen Sjösidan
Bostadstyp Parhus
Boendeform Bostadsrätt
Bostäder 22 st om 5-6 rok
Inflyttning Från december 2024 - april 2025
