SE NÄSTA
VISNINGSTID
HÄR

Hitta din trea
i Slaktis
I Slakthusområdet möts breda gator och gamla tegelväggar med nya fasader. Här fylls kvarteren av restauranger, barer och konsertscener, medan neonljuset över kvällspubliken blandas med solstrålar över de nya gröna stråken - ett liv i rörelse! Vilken trea blir din?

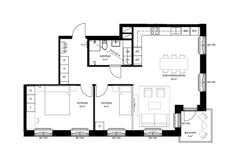
Social hörnlägenhet med soligt läge
3 rok, 74 kvm, 13-1106 och 13-1301
Smart planerad trea med hörnläge och balkong i soligt sydväst läge. Det ljusa allrummet med ett stilrent kök skapar en perfekt samlingspunkt för familj och vänner. Med två välplanerade sovrum, båda utrustade med garderober, får du gott om plats för både vila och förvaring. I denna lägenhet finns en möjlighet att skapa ett större vardagsrum genom att ta bort en vägg till intilliggande sovrum.



Ljus hörnlägenhet med dubbla balkonger
3 rok, 72 kvm, 12-1503 och 12-1703
Modernt och bekvämt med dubbla balkonger och generösa sociala ytor mitt i pulserande Slakthusområdet. Ljuset flödar in genom flera fönster och förstärker den luftiga känslan i den öppna planlösningen mellan kök och vardagsrum – perfekt för både vardag och umgänge. Lägenheten erbjuder två välplanerade sovrum med god förvaring där det ena sovrummet dessutom har direkt utgång till en av balkongerna – en extra lyx i vardagen.

Ljus hörnlägenhet med dubbla balkonger
3 rok, 72 kvm, 12-1503 och 12-1703
Modernt och bekvämt med dubbla balkonger och generösa sociala ytor mitt i pulserande Slakthusområdet. Ljuset flödar in genom flera fönster och förstärker den luftiga känslan i den öppna planlösningen mellan kök och vardagsrum – perfekt för både vardag och umgänge. Lägenheten erbjuder två välplanerade sovrum med god förvaring där det ena sovrummet dessutom har direkt utgång till en av balkongerna – en extra lyx i vardagen.


Slakthusområdet -
en förlängning av Södermalm
Köpenhamnarna har sitt Kodbyen, New Yorkborna har Meatpacking district och Londonborna har kvarteren runt Borough Market. Platser som känns på riktigt, dit bara de modigaste flyttade först – de som sätter trender, snarare än följer dem. Ett område som redan sjuder av liv dygnet runt och där gatorna fylls av människor istället för bilar. En plats som skapas av människorna som bor och verkar där, av deras idéer, energi, livskraft och vilja att förändra.
Vill du också vara med och utforma framtiden i Slakthusområdet? Besök vårt showroom och få en glimt av livet i Fransyskan.
Här hittar du aktuell visningstid


Slakthusområdet -
en förlängning av Södermalm
Köpenhamnarna har sitt Kodbyen, New Yorkborna har Meatpacking district och Londonborna har kvarteren runt Borough Market. Platser som känns på riktigt, dit bara de modigaste flyttade först – de som sätter trender, snarare än följer dem. Ett område som redan sjuder av liv dygnet runt och där gatorna fylls av människor istället för bilar. En plats som skapas av människorna som bor och verkar där, av deras idéer, energi, livskraft och vilja att förändra.
Vill du också vara med och utforma framtiden i Slakthusområdet? Besök vårt showroom och få en glimt av livet i Fransyskan.
Här hittar du aktuell visningstid

Treorna i Fransyskan
I bostadsväljaren nedan ser du alla treor i Fransyskan. Vill du se alla bostäder i
Fransyskan, klicka här
Välkommen till Fransyskan
Fransyskan blir en del av de mysiga Fållankvarteren och rymmer 122 välplanerade lägenheter i olika storlekar, fördelade på tre bostadshus om sju till tio våningar.
De översta våningarna erbjuder generösa takvåningar med egna terrasser, braskamin och fina ljusinsläpp. Husens tegelfasader knyter an till den gamla industriarkitekturen i området och i entréplan planeras för verksamheter som restaurang och deli eller café.



Gör ditt bostadsköp
tryggt och säkert
• Skydd mot dubbel boendekostnad
• Tillträdesskydd
• Trygghetsmärkningen Trygg BRF
• Besqab ansvarar för osålda bostäder
• Vi bygger alltid klart
Visning
måndag 13/4 17:00-18:00
Välkommen på visning i Fransyskans showroom i Ahouse Börshuset, Slakthusplan 3, Slakthusområdet. Här kan man träffa mäklare, se material om lägenheterna samt en modell över byggnaderna.
Anmäl intresse
Genom att anmäla ditt intresse får du en plats i kön för att välja en bostad.
Du godkänner också att ta emot information om våra projekt