Sundbyberg
Tegeltornen 5-1101, 4 rok, 81 kvm

| Pris | 6 395 000 kr |
|---|---|
| Avgift | 4 756 kr |
| Yta | 81 kvm |
| Rum | 4 rok |
| Våning | 1 |
| Status | Till salu |
| Objektsnr | 5-1101 |
| Boendeform | Bostadsrätt |
Visning
Vad roligt att du vill komma på visning.
Kontakta ansvarig mäklare för att boka en tid, välkommen!
Bostäder
| Nummer | Våning | Antal rum | Storlek | Pris | Avgift | Status |
|---|---|---|---|---|---|---|
| 1-1401 | 4 | 3 rok | 73 kvm | 5 995 000 kr | 4 333 kr | Till salu |
| 1-1702 | 7 | 2 rok | 37 kvm | 3 045 000 kr | 2 889 kr | Till salu |
| 3-2101 | 11 | 3 rok | 67 kvm | 5 895 000 kr | 4 487 kr | Till salu |
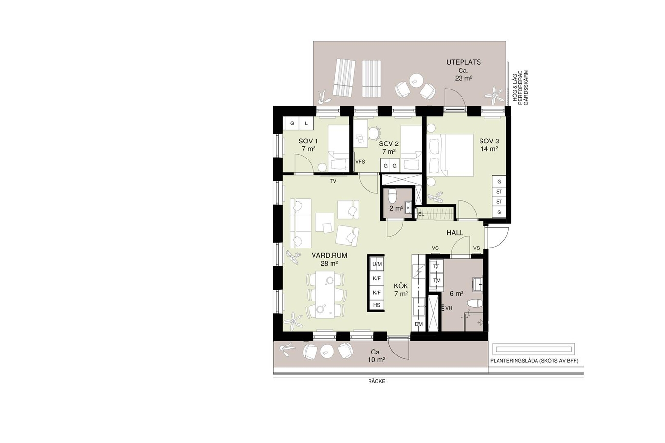
| 5-1101 | 1 | 4 rok | 81 kvm | 6 395 000 kr | 4 756 kr | Till salu |
| 1-1203 | 2 | 2 rok | 37 kvm | 2 645 000 kr | 2 889 kr | Reserverad |
| 1-1902 | 9 | 2 rok | 37 kvm | 3 245 000 kr | 2 889 kr | Reserverad |
| 4-1301 | 3 | 5 rok | 99 kvm | 7 295 000 kr | 5 982 kr | Reserverad |
| 1-1303 | 3 | 2 rok | 37 kvm | Såld | ||
| 1-1402 | 4 | 2 rok | 37 kvm | Såld | ||
| 1-1701 | 7 | 3 rok | 73 kvm | Såld |
Restider
I närheten
Mer om projektet
Sundbyberg
Tegeltornen
Välkommen till Tegeltornen, den nya delen i hjärtat av Fabriksparkens historiska kvarter. Här möts modern design och industriell charm i en levande boendemiljö. Totalt planeras 164 stilfulla lägenheter, där de vackra tegelfasaderna och varierande våningshöjderna hyllar områdets industriella arv och ger kvarteret en distinkt karaktär.
Bostadstyp Lägenheter
Boendeform Bostadsrätt
Bostäder 164 st om 1-5 rok
Inflyttning Från vintern 2026/27
