Aspudden
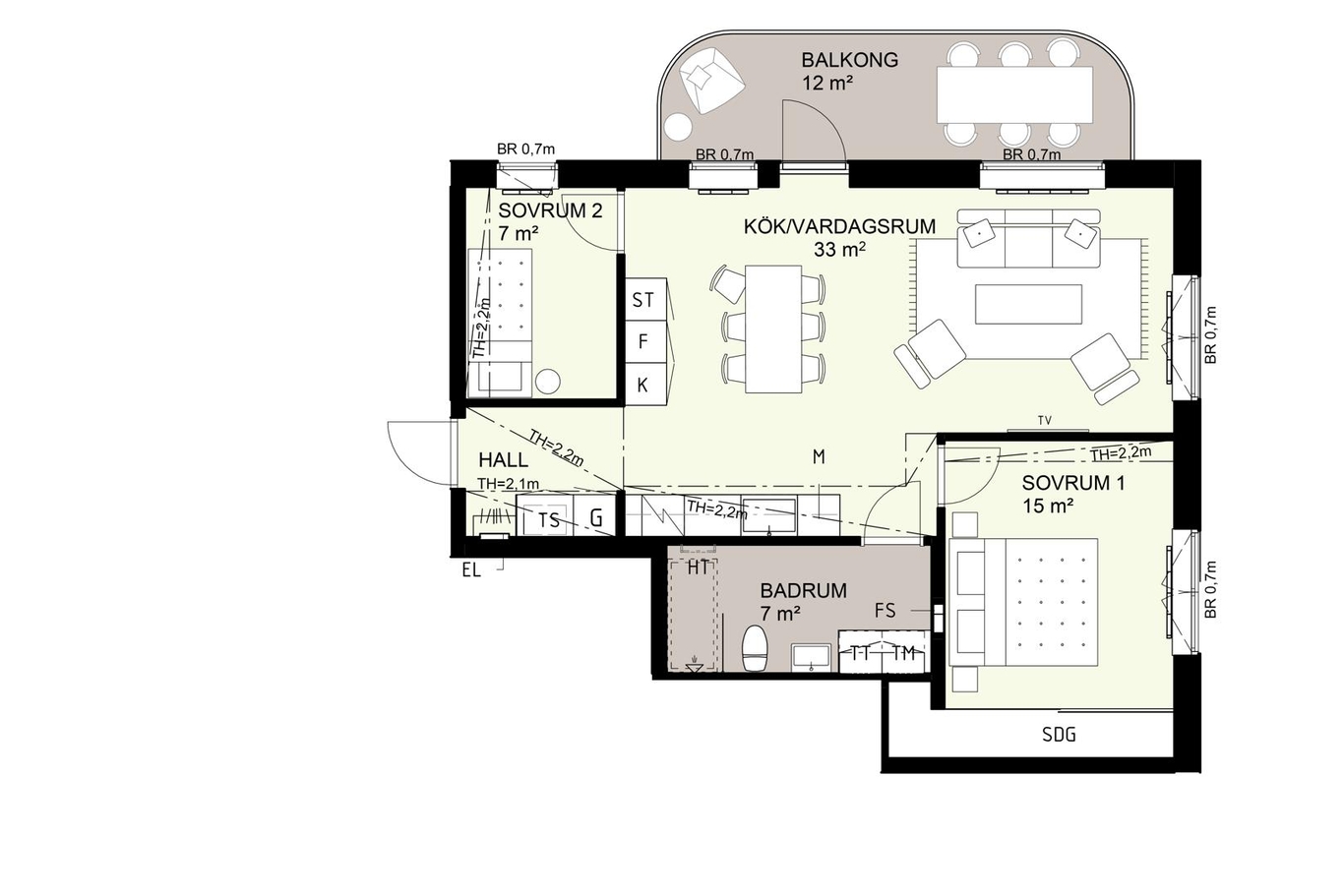
Aspen 22-1402, 3 rok, 68 kvm

Köpanmälan
För att göra en köpanmälan för den här bostaden, notera objektsnummer och använd formuläret via länken nedan.
| Pris | 6 095 000 kr |
|---|---|
| Avgift | 4 995 kr |
| Yta | 68 kvm |
| Rum | 3 rok |
| Våning | 4 |
| Status | Såld |
| Objektsnr | 22-1402 |
| Boendeform | Bostadsrätt |
Mycket välplanerad hörn 3:a, stor balkong med eftermiddag och kvällssol. Kök och vardagsrum med fönster i två väderstreck och öppen planlösning om 33 kvm. Stort sovrum om 15kvm samt ett mindre.