Aspudden
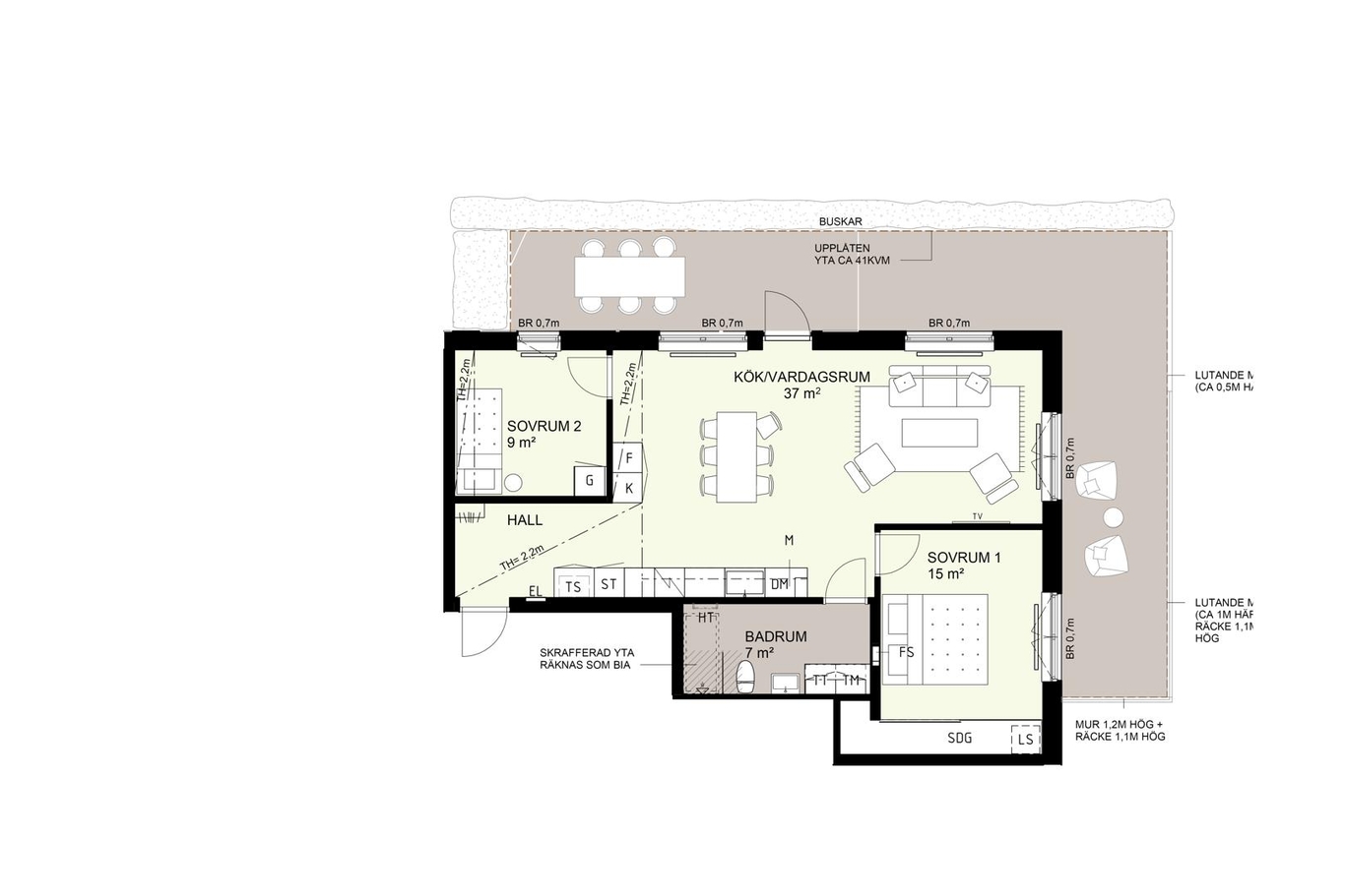
Aspen 22-1001, 3 rok, 76 kvm

Köpanmälan
För att göra en köpanmälan för den här bostaden, notera objektsnummer och använd formuläret via länken nedan.
| Pris | 5 995 000 kr |
|---|---|
| Avgift | 5 377 kr |
| Yta | 76 kvm |
| Rum | 3 rok |
| Våning | 0 |
| Status | Såld |
| Objektsnr | 22-1001 |
| Boendeform | Bostadsrätt |
Trivsam trea med dryga 40 kvm uteplats! Kök och vardagsrum i öppen planlösning som erbjuder gott om plats för samvaro. Inredningen går i en varm linnebeige nyans. Köket med släta luckor och rostfria beslag. Vitvarorna är även de rostfria och diskmaskinen integrerad bakom en kökslucka. Köket är från Vedum och vitvarorna från Electrolux.