Aspudden
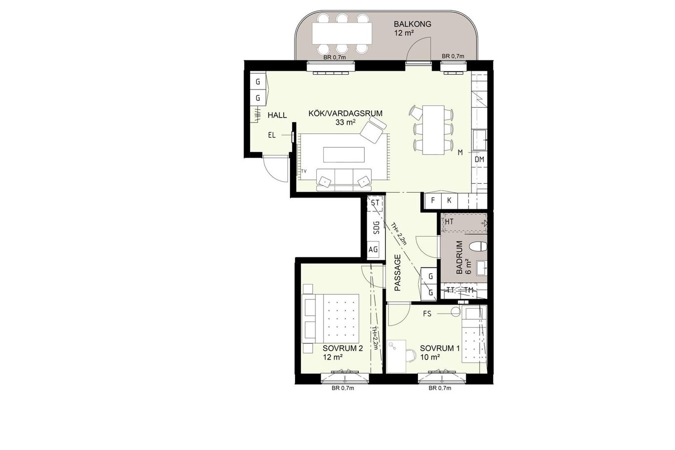
Aspen 21-1203, 3 rok, 76 kvm

Köpanmälan
För att göra en köpanmälan för den här bostaden, notera objektsnummer och använd formuläret via länken nedan.
| Pris | 6 095 000 kr |
|---|---|
| Avgift | 5 334 kr |
| Yta | 76 kvm |
| Rum | 3 rok |
| Våning | 2 |
| Status | Såld |
| Objektsnr | 21-1203 |
| Boendeform | Bostadsrätt |
76 kvm stor genomgångslägenhet med stor balkong om 12 kvm med eftermiddags-/kvällssol mot innergården.
Kök och vardagsrum är öppna mot varandra och skapar ett ljust, luftigt hem med stora ytor. Sovrummen är båda av större modell och ligger i en privat del av hemmet.
Inredningen går i en varm linnebeige nyans. Köket med släta luckor och rostfria beslag. Vitvarorna är även de rostfria och diskmaskinen integrerad bakom en kökslucka. Köket är från Vedum och vitvarorna från Electrolux.