
| Pris | 5 295 000 kr |
|---|---|
| Avgift | 5 334 kr |
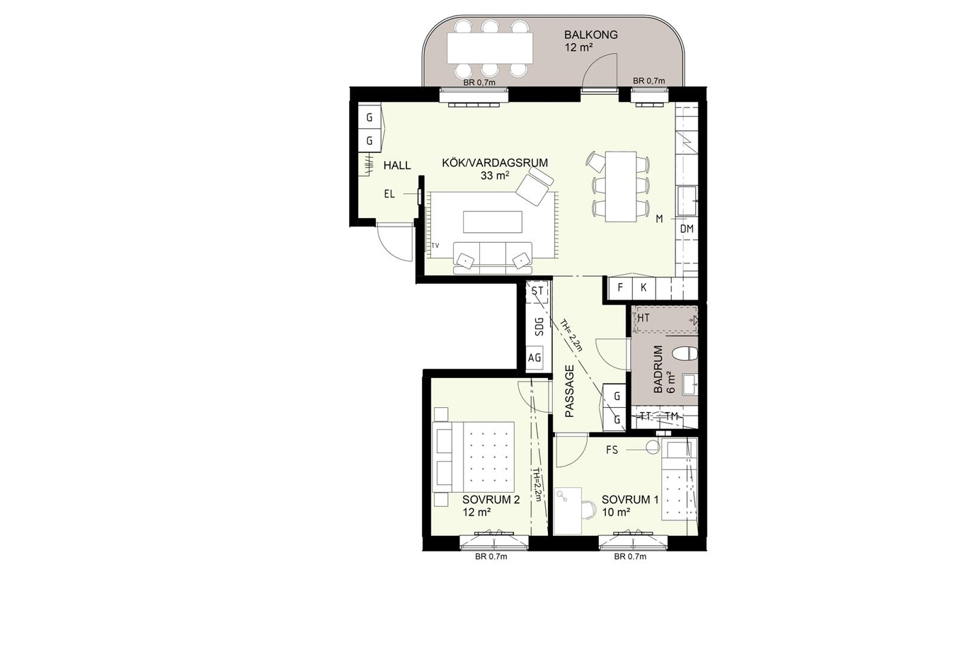
| Yta | 76 kvm |
| Rum | 3 rok |
| Våning | 1 |
| Status | Såld |
| Objektsnr | 21-1102 |
| Boendeform | Bostadsrätt |
76 kvm stor genomgångslägenhet med stor balkong om 12 kvm med eftermiddags-/kvällssol mot innergården.
Kök och vardagsrum är öppna mot varandra och skapar ett ljust, luftigt hem med stora ytor. Sovrummen är båda av större modell och ligger i en privat del av hemmet.
Inredningen går i en varm linnebeige nyans. Köket med släta luckor och rostfria beslag. Vitvarorna är även de rostfria och diskmaskinen integrerad bakom en kökslucka. Köket är från Vedum och vitvarorna från Electrolux.
Visning
söndag 15/3 12:00-13:00
Visning i Aspens visningslägenhet med adress Sigfridsvägen 30. I visningslägenheten kan du titta på materialval och få en känsla av projektet. För visning av aktuell lägenhet, boka enskild tid.
Bostäder
| Nummer | Våning | Antal rum | Storlek | Pris | Avgift | Status |
|---|---|---|---|---|---|---|
| 11-1001 | 0 | 4 rok | 90 kvm | Såld | ||
| 11-1002 | 0 | 4 rok | 96 kvm | Såld | ||
| 11-1102 | 1 | 5 rok | 107 kvm | Såld | ||
| 11-1201 | 2 | 4 rok | 98 kvm | Såld | ||
| 11-1202 | 2 | 5 rok | 107 kvm | Såld | ||
| 11-1301 | 3 | 4 rok | 98 kvm | Såld | ||
| 11-1302 | 3 | 5 rok | 107 kvm | Såld | ||
| 11-1402 | 4 | 2 rok | 76 kvm | Såld | ||
| 12-1101 | 1 | 5 rok | 107 kvm | Såld | ||
| 12-1102 | 1 | 4 rok | 98 kvm | Såld |
Restider
I närheten
Mer om projektet
Aspen
Bostadstyp Lägenheter
Boendeform Bostadsrätt
Bostäder 47 st om 2 - 5 rok
Inflyttning Från mars 2026
