Ekerö
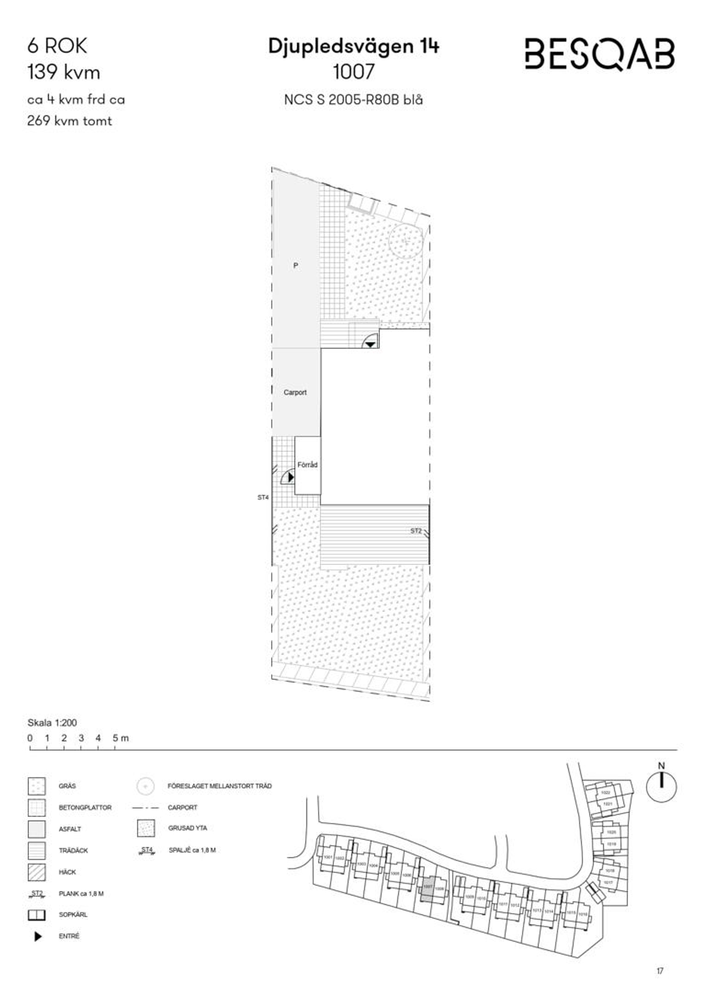
Ekerövallen Sjösidan 1007, 6 rok, 139 kvm


| Pris | 6 750 000 kr |
|---|---|
| Avgift | 6 893 kr |
| Yta | 139 kvm |
| Rum | 6 rok |
| Våning | 3 |
| Status | Såld |
| Objektsnr | 1007 |
| Boendeform | Bostadsrätt |
Familjeidyll på södra Ekerö med egen altan, trädgård och carport!
Välkommen till Sjösidan och detta sjönära tre plans parhus med takterrass, två allrum, tre sovrum och en underbar tomt i bästa söderläge! Bostaden är mycket väldisponerad med sina 139 kvm - här får hela familjen plats! Med enkla grepp kan planlösningen utökas upp till sex sovrum och ett allrum. Ett okomplicerat och bekvämt boende, bara att flytta in och börja njuta!
I bostaden får familjen en naturlig uppdelning av det sociala och det lugna. Planlösningarna är flexibla och omsorgsfullt planerade för att maximera ljusinsläppet och främja möblerbarheten. Det finns två helkaklade badrum, varav ett med tvättmöjligheter på entréplan.
I anslutning till parhuset finns parkering i carport med eluttag samt ytterligare p-platser på uppfarten. Inom nära avstånd hemifrån finns bl. a. matbutiker, restauranger, gym, frisör, förskolor och skolor.
Husen är byggda i trä som fint knyter an till den omkringliggande miljön som består av äldre uppvuxna villaområden. Enkelhet, tidlöshet, kvalitet och funktion är begrepp som förknippas med skandinavisk design. Det är också temat för inredningen i bostäderna. Ett hem ska tåla generationers användning, från morfars bullbak på köksbänken i komposit till barnens leriga stövlar på klinkergolvet i hallen. Du känner även naturens andetag i allt från de stora fönsterpartierna, takterrassen, det vackra enstavsparketten, väggarnas sobra färger som ger ett stilrent intryck.
Ekerövallen är en modern och trevlig trädgårdsstad med många fantastiska kvalitéer! Med närhet till Mälaren, förskolor, skolor, livsmedelsbutiker, idrottsanläggningar och bra kommunikationer finns alla förutsättningar för att leva både ett bekvämt och aktivt liv, endast 20 km från Stockholms city!
Visning
Vad roligt att du vill komma på visning.
Kontakta ansvarig mäklare för att boka en tid, välkommen!
Bostäder
| Nummer | Våning | Antal rum | Storlek | Pris | Avgift | Status |
|---|---|---|---|---|---|---|
| 1001 | 2 | 5 rok | 106 kvm | Såld | ||
| 1004 | 2 | 5 rok | 106 kvm | Såld | ||
| 1007 | 3 | 6 rok | 139 kvm | Såld | ||
| 1011 | 3 | 6 rok | 139 kvm | Såld | ||
| 1012 | 2 | 5 rok | 106 kvm | Såld | ||
| 1013 | 3 | 6 rok | 139 kvm | Såld | ||
| 1014 | 2 | 5 rok | 106 kvm | Såld | ||
| 1015 | 3 | 6 rok | 139 kvm | Såld | ||
| 1016 | 2 | 5 rok | 106 kvm | Såld | ||
| 1017 | 2 | 5 rok | 106 kvm | Såld |
Restider
I närheten
Mer om projektet
Ekerövallen Sjösidan
Bostadstyp Parhus
Boendeform Bostadsrätt
Bostäder 22 st om 5-6 rok
Inflyttning Från december 2024 - april 2025
