Täby
Ella Allé 41-1003, 5 rok, 129 kvm



| Pris | 6 595 000 kr |
|---|---|
| Avgift | 7 497 kr |
| Yta | 129 kvm |
| Rum | 5 rok |
| Våning | 0 |
| Status | Såld |
| Objektsnr | 41-1003 |
| Boendeform | Bostadsrätt |
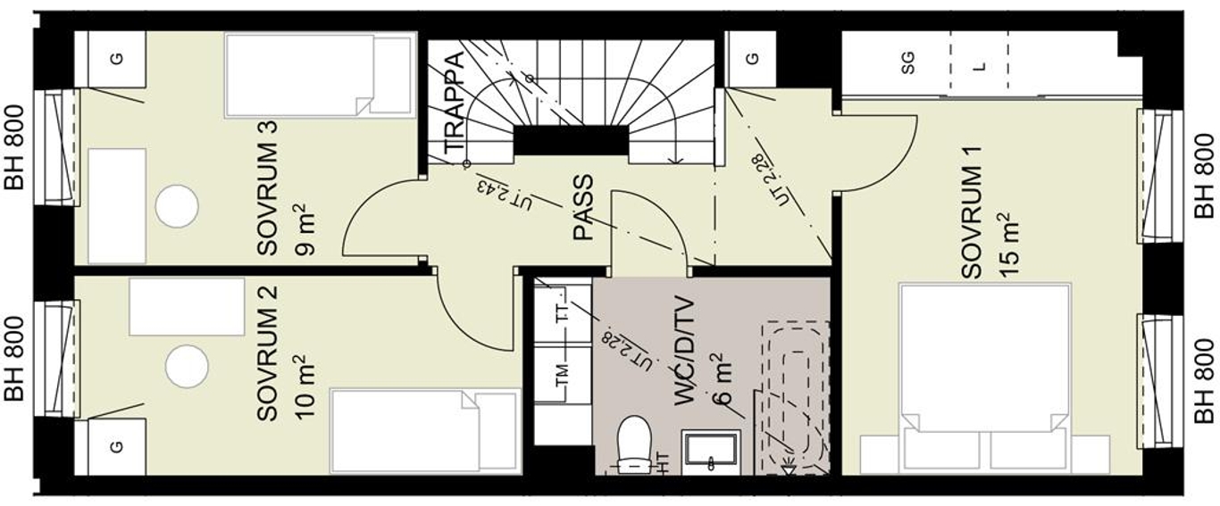
Här bor du i ett smart planerat stadsradhus i tre plan med stor takterrass om ca 18 kvm, 3-4 sovrum, två duschrum och en fantastisk takhöjd från 2,75 upp till 3 meter på övre plan.
Entréhall med klinker på golv och plats för avhängning samt förvaring i garderob. En halvhög vägg skärmar av mot köket. På entréplanet finns också ett duschrum och ett rymligt vardagsrum. På plan två finns tre bra sovrum och rymligt duschrum med tvättmaskin och torktumlare. Övre plan med allrum, alternativt sovrum, samt förråd. Våningen har snedtak med en takhöjd upp till tre meter. Härifrån nås också takterrassen om hela 18 kvm - en härlig extra yta för social samvaro under årets varma månader.
Med ett läge nära både Täby centrums utbud och kommunikationer samt förskolor och naturområden erbjuds här ett riktigt familjevänligt och lättskött boende. Lekplats på innergården alldeles utanför och garanterad plats i garage förenklar ytterligare. Husen står klara i augusti - december.
Visning
Vad roligt att du vill komma på visning.
Kontakta ansvarig mäklare för att boka en tid, välkommen!
Bostäder
| Nummer | Våning | Antal rum | Storlek | Pris | Avgift | Status |
|---|---|---|---|---|---|---|
| 41-1001 | 0 | 4 rok | 118 kvm | Såld | ||
| 41-1002 | 0 | 5 rok | 129 kvm | Såld | ||
| 41-1003 | 0 | 5 rok | 129 kvm | Såld | ||
| 41-1004 | 0 | 5 rok | 129 kvm | Såld | ||
| 41-1005 | 0 | 5 rok | 129 kvm | Såld | ||
| 51-1001 | 0 | 4 rok | 118 kvm | Såld | ||
| 51-1002 | 0 | 5 rok | 129 kvm | Såld | ||
| 51-1003 | 0 | 5 rok | 129 kvm | Såld | ||
| 51-1004 | 0 | 4 rok | 120 kvm | Såld |
Restider
I närheten
Mer om projektet
Ella Allé
Bostadstyp Lägenheter, Radhus
Boendeform Bostadsrätt
Bostäder 127 st om 1 - 5 rok
Inflyttning från Q4 2023 - Q4 2024
