Upplands Väsby
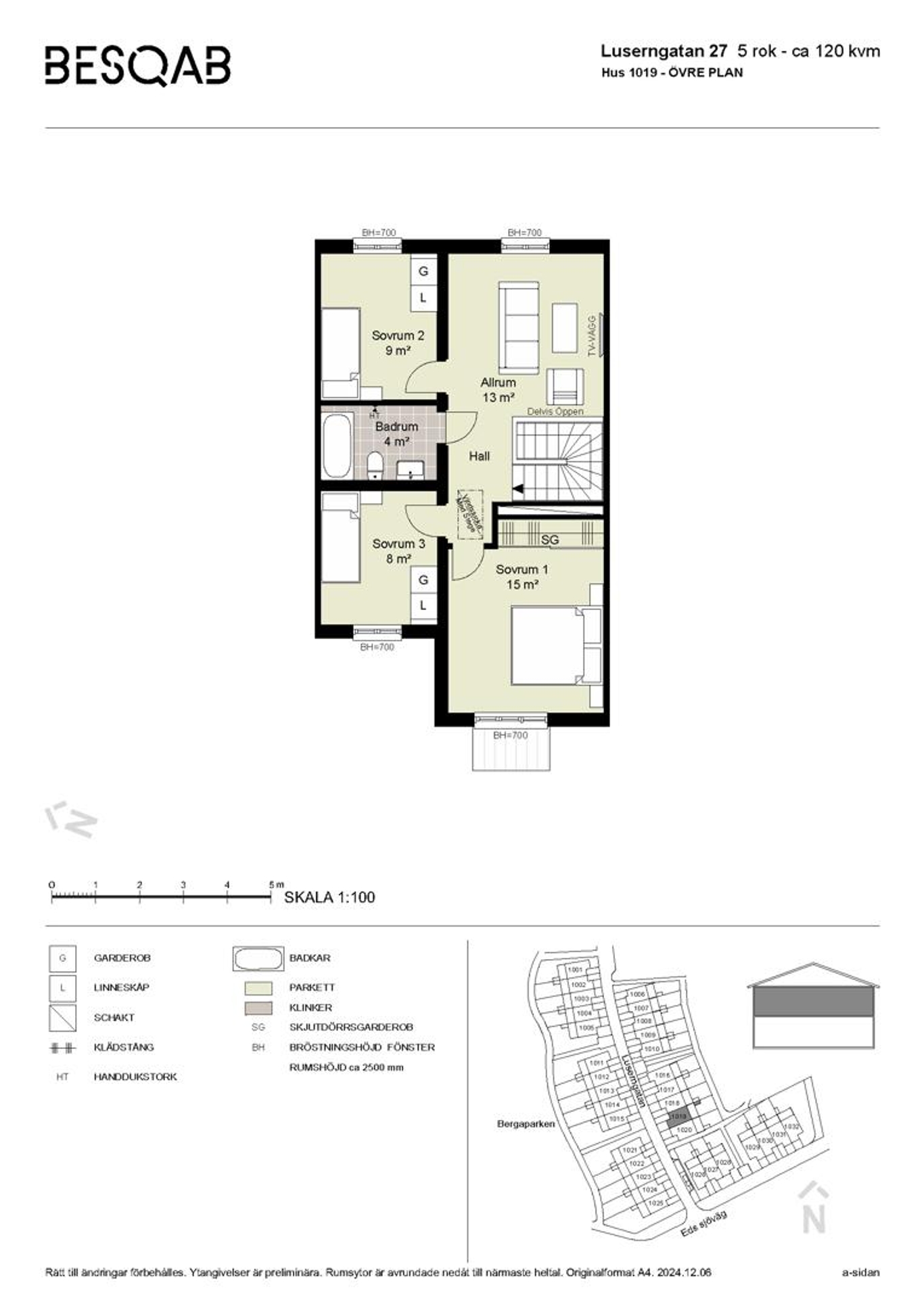
Sjöstråket 1019, 5 rok, 120 kvm



Köpanmälan
För att göra en köpanmälan för den här bostaden, notera objektsnummer och använd formuläret via länken nedan.
| Pris | 4 295 000 kr |
|---|---|
| Avgift | 5 713 kr |
| Yta | 120 kvm |
| Rum | 5 rok |
| Våning | 1 |
| Status | Kommande |
| Objektsnr | 1019 |
| Boendeform | Bostadsrätt |
Stilrent, nyproducerat radhus om fem rum och kök på 120 kvm.
På entréplanet finns de sociala ytorna som kök och vardagsrum med öppen planlösning. På övre plan finns familjens privata del med tre sovrum och ett allrum. Badrum finns såklart på varje våningsplan, allt för att göra vardagen enkel.
Från vardagsrummet går du ut på uteplatsen där du tillbringar mycket ledig tid. Oavsett om du läser en bok eller tittar till barnen som leker på innergården så kommer du kunna återhämta dig efter en arbetsvecka.
Bostaden är designad med fokus på både stil och komfort, inspirerad av skandinavisk design som betonar enkelhet, tidlöshet, kvalitet och funktionalitet. Här finner du ett härdat golv i ljus ek i enstav och köksbänk i kompositsten.
Eds Allé ligger mitt i naturen och ändå centralt. På gång- och cykelavstånd finns förskola, skola, affär och annan service som du behöver för att få vardagspusslet att gå ihop. Till Väsby Centrum, med 80 butiker och matställen, tar det ca 6 min med bil.
Med 30 minuter till Stockholm C, 25 minuter till Uppsala och 10 minuter till Arlanda har du hela världen inom räckhåll.
För mer information, kontakta mäklaren!