
Exklusiva studiolägenheter i Tegeltornen
Välplanerade studiolägenheter med generös takhöjd och möblerbart loft i populära Fabriksparken. Centralt läge i Sundbyberg med kort gångavstånd till restauranger, service, grönområden samt utmärkta kommunikationer med tunnelbana, pendeltåg och tvärbana. En perfekt bostad för dig som söker en modern studio med det lilla extra.

Studiolägenhet med loft — modern elegans med extra rymd
Lgh 2-1001, 2 rok, 60 kvm + 13 kvm, 3 495 000 kr
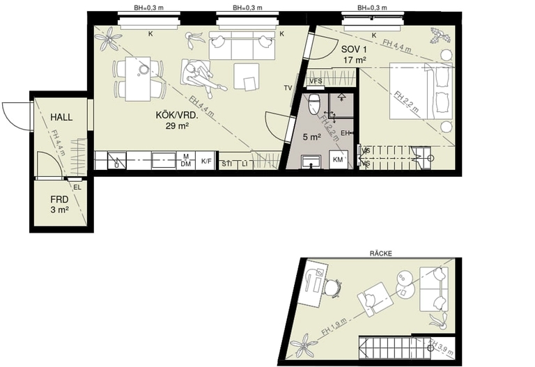
Redan i entrén möts du av en välkomnande hall med praktiskt förråd om ca 3 kvm. Härifrån öppnar bostaden upp sig mot ett ljust kök och vardagsrum i öppen planlösning med stora fönsterpartier och gott om plats för både matbord och soffgrupp.
Läs mer om bostaden
Det stilrena köket från Vedum med vitvaror från Electrolux är hemmets naturliga mittpunkt. Sovrumsdelen är avskild och rymmer dubbelsäng och förvaring, medan det möblerbara loftet ger extra yta för arbetsplats, ateljé eller gästrum. Helkaklat badrum med dusch och egna tvättmöjligheter ger hög vardagskomfort.
Ett extra rum
Det möblerbara loftet är bostadens stora extra kvalitet och gör den här studiolägenheten ovanligt flexibel. Här får du en naturlig plats för hemmakontor, ateljé eller kreativ studio – perfekt för dig som jobbar hemifrån, frilansar eller vill ha en avskild yta för skapande, träning eller hobbies. Loftet skapar en tydlig uppdelning mellan sociala ytor och arbets-/vilozon, utan att ta fler kunskapsmeter i anspråk.
Läs mer om studiolägenheten
Du kan låta vardagrummet vara rent och representativt, medan dator, skissblock, staffli eller symaskin får stå framme på loftet utan att störa helhetsintrycket. Ett extra loft i en studiolägenhet ger känslan av en mini-trea – med fler funktioner, mer förvaring och större frihet att anpassa hemmet efter livsstil och behov, både idag och över tid.


Bo, skapa och arbeta – unik studiolägenhet med loft
Lgh 2-1002, 2 rok, 34 kvm + 8 kvm, 2 495 000 kr
Det möblerbara loftet är den stora bonusen i den här studiolägenheten om ca 34 kvm, med ytterligare ca 8 kvm loftyta ovanpå. Den generösa takhöjden i kök/vardagsrum, upp mot ca 4,4 meter, ger en luftig ateljékänsla där loftet blir en naturlig, extra våning i rummet.
Läs mer om loftet
Här kan du skapa ett självklart hemmakontor, en kreativ ateljé eller en mysig lounge-/gästdel – utan att tumma på de sociala ytorna nere på entréplanet. Loftet har en fri höjd om ca 1,9 meter, vilket gör det lätt att möblera med skrivbord, förvaring, dagbädd eller läshörna.



Inspirationsbild Design 2024/25

Inspirationsbild Design 2024/25

Flexibelt ägande - möjlighet till köp via juridisk person
För dessa två utvalda studiolägenheter (2-1001 & 2-1002) i Tegeltornen erbjuder vi möjligheten till ägande via juridisk person – en lösning särskilt anpassad för dig som söker ett mer strategiskt och flexibelt boendealternativ.


Visning
måndag 15/12 17:30-18:00
Välkommen på visning i vår visningspaviljong, strax intill byggarbetsplatsen längs med Löfströms allé!
Anmäl intresse
Genom att anmäla ditt intresse får du en plats i kön för att välja en bostad.
Du godkänner också att ta emot information om våra projekt