I vissa av lägenheterna finns ett generöst skafferi. En detalj som för tankarna till de gamla villornas omsorg om både funktion och vardagslyx. Här får du plats med allt från torrvararor, hemgjord sylt till stora köksmaskiner.


Smarta hem med utmärkt skärgårdsläge
I Storgården får du precis det du behöver – och lite till. Här möts yteffektiva planlösningar, grönskande gård och ett läge som gör att du aldrig saknar det där extra rummet. Ett prisvärt boende för dig som hellre väljer rätt plats än onödiga kvadrat. Hur stort behöver man egentligen bo? I Storgården blir svaret: lagom stort och genomtänkt på Norrberget.

Projektbeskrivning
| Bostadstyp | Lägenheter |
|---|---|
| Boendeform | Bostadsrätt |
| Bostäder | 70 om 1-4 rum rok |
| Inflyttning | Preliminärt vintern 2028 |
| Status | Planerat |
| Svanenmärkt | Ja |

BILDPSEL
Visionsbilder

Inspirerat av Vaxholms trähustradition
Byggnadernas gestaltning med träpanel och plåtklädda tak hämtar inspiration från den klassiska trähusbebyggelsen i de centrala delarna av Vaxholm. Verandorna på gavlarna i kvarterets västra del och mot gården är en blinkning till den klassiska punschverandan. Fast i modern tappning.
Läs mer om gestalningen
Byggnaderna är, liksom i resten av området, i två till tre våningar plus vind och har fasader i träpanel. Skalan har småstadens kvalitéer, med tydliga intima gaturum med träd och grönskande öppningar in till gårdsrummen.
Området är planerat utefter Norrbergets topografi och gatunätet får därför naturliga krökningar och knäckar vilket bidrar till intressanta och varierade gaturum. En stadsdel som är inbjudande och trivsam både för de som bor här och för dem som passerar.
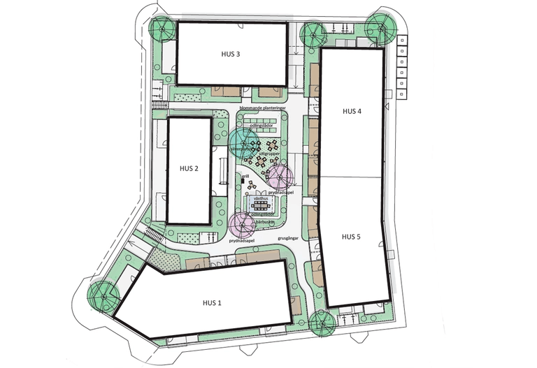
Den lummiga gården är en samlande punkt för de boende. Via den når man samtliga bostäder och den blir därigenom en naturlig plats för möten i vardagen. På gården finns ett växthus och pallkragar för odling liksom möblering för social samvaro, grannar emellan. Trapphusen i norr och öster är genomgående och har dessutom entréer.

En gård som blir hemmets hjärta
Den lummiga innergården är kvarterets självklara hjärta och en samlande punkt för alla som bor här. Det är en plats för odling, gemenskap och sköna stunder, i solen, i skuggan eller under tak när vädret skiftar. Gården fungerar som ett grönt vardagsrum där livet får ta plats i en lugn och trivsam miljö.
I det mysiga orangeriet kan du samla familj och vänner för fika eller middag, omgiven av grönska och skyddad från väder och vind året runt. Intill väntar den gemensamma grillen för enkla och spontana sommarkvällar
Läs er om möjligheterna på gården
Odlingslådorna ger dig möjlighet att plantera det du tycker om, kryddor, blommor eller grönsaker. Här får du känslan av en egen liten trädgård, men utan måsten. Blommande körsbär, silverpäron och bärbuskar ramar in gården och skapar en mjuk, grön känsla genom säsongerna. De gröna ytorna gynnar biologisk mångfald genom att skapa livsmiljöer för pollinerare som bin och fjärilar, samtidigt som de stärker naturens kretslopp. Samtidigt fungerar odlingen som en mötesplats där grannar kan träffas, samarbeta och utbyta kunskap, vilket bidrar till en starkare gemenskap och ett mer levande bostadsområde.

Stora kvaliteter i smart format
I Storgården har målet varit att skapa yteffektiva boenden, utan att göra avkall på något av det man kan förvänta sig av ett modernt hem. Oavsett vilken lägenhet du väljer så möter du här smarta och öppna planlösningar som optimerats med rätt ljusinsläpp, och skapar känsla av rymd även för den som bor lite mindre. Materialvalen är valda med omsorg och innehåller mjuka kulörer, hållbara ytor och detaljer som gör att hemmet håller över tid.
Vi överträffar branschens klimatkrav med ambitiösare koldioxidmål och levererar en energiprestanda som ligger under gällande BBR-krav – något som både minskar klimatpåverkan och ger de boende lägre energikostnader och ett mer hållbart vardagsliv.

BILDPSEL
Exempel på planlösningar
Unika detaljer

Inredningen i Storgården
Enkelhet, tidlöshet, kvalitet och funktion är begrepp som förknippas med skandinavisk design. Det är också temat för den fasta inredningen i våra bostäder.
Vi har lagt mycket tid och omsorg på att välja material och färger som håller för ett aktivt liv, och som fortsätter vara vackra över tid, där den naturliga färgskalan dessutom ger en lugn bakgrund till den personliga inredningen.


Här möts den gröna innergårdens stillhet och den öppna gemenskapen – med havet, hamnen och stadskärnan bara en kort promenad bort.
Lättare vardag. Enkelt sätt att leva
I Storgården är det lätt att leva och lätt att trivas. För dig som flyttar från villa känns mycket bekant, men i en lite mindre och betydligt mer lättskött vardag. Här kan du släppa tankarna på renoveringar, tak som ska bytas och gräsmattor som ska klippas och i stället lägga tiden på det som verkligen betyder något.
I de gemensamma rummen
För grannarna med gröna fingrar

Storgården enligt arkitekten
Göran Kolbäck Södergruppen Arkitekter
Det är något alldeles särskilt med Norrberget. Kanske är det luften, vattnet och ljuset eller människorna som valt att leva sina liv just här. Här finns ett lugn och en stillsam närvaro som är svår att sätta ord på, men omedelbar att känna. I arbetet med Storgården har min ambition varit att fånga den känslan och låta den leva vidare i arkitekturen. Att skapa ett kvarter som hämtar sin själ ur platsen och samtidigt tillför ett nytt kapitel till Vaxholms berättelse.
Läs hela arkitektens ord
Redan från den första skissen var riktningen tydlig: arkitekturen skulle följa bergets naturliga rörelser. Gatunätets mjuka krökningar och knäckar formar levande, intima rum, som om kvarteret vuxit fram organiskt över tid. Inspirationen från Vaxholms klassiska trähusbebyggelse har varit vår kompass, men varje detalj är tolkad för samtiden.
Verandor som anspelar på den traditionella punschverandan, träpaneler och plåtklädda tak binds samman i en modern och självklar helhet. Fokus har varit att skapa yteffektiva hem utan att kompromissa med ljus, rymd eller värdighet, en uppgift som kräver precision och omsorg.
Öppna planlösningar, genomtänkta siktlinjer och generösa fönster samspelar för att ge varje bostad en naturlig känsla av hem. Innergården blev kvarterets hjärta. En grön och levande mötesplats med odling, växthus och rum för samtal. För ett kvarter formas inte bara av sina fasader, utan av livet som uppstår mellan husen. Kanske är det just genom detta arbete som jag på djupet har förstått varför så många valt att kalla Vaxholm sin plats på jorden. Ljuset, skalan, närheten till vattnet och den mänskliga dimensionen samverkar på ett sätt som är svårt att värja sig mot. Med Storgården har vi velat förvalta den känslan och ge den vidare.
Storgården är för mig mer än ett bostadsprojekt. Det är en ny årsring i Vaxholm, varsamt infogad i stadens väv och samtidigt tydligt samtida. Ett kvarter att känna stolthet över.

Livet i skärgården
Det trivsamma livet i Storgården beror såklart mycket på området. Norrberget är gemytligt och familjärt, precis som resten av Vaxholm. Från Norrberget är det inte långt att gå till mataffären, bion, eller till någon av alla restauranger och butiker i stadskärnan. Det är så enkelt att de flesta väljer att gå eller cykla.
Läs mer
För dig som vill röra på dig lite mer finns väldigt fina vandringsleder och svampskogar i Eriksö friluftsområde på Vaxön eller i naturreservatet Bogesundslandet. Många har en egen båt i hamnen, men det behövs inte. Vattnet är ändå alltid närvarande i Vaxholm, och du kan bada nästan var som helst. Livet kan gå hur fort, eller långsamt, som du vill. Men det bestämmer du helt och hållet själv.


Storstadens puls inom räckhåll
Från Vaxholm tar du dig smidigt in till Stockholm för med direktbussen i närheten av Storgården är du i Stockholm på cirka 40 minuter. Både enkelt och bekvämt. Vill du resa lite vackrare? Då hoppar du på skärgårdsbåten i hamnen. Ett uppskattat alternativ stora delar av året och svårslaget när solen glittrar över fjärden. I Vaxholm bor du med skärgårdens lugn runt knuten och storstadens puls inom räckhåll. Det bästa av två världar, helt enkelt.
En plats för hela livet – skola och omsorg på nära håll
Att bo på Norrberget innebär en vardag där allt du behöver finns runt knuten. För barnfamiljen är läget idealiskt, med flera förskolor och skolor på bekvämt gångavstånd.
Även för den äldre generationen är Norrberget en trygg hamn. I närområdet finns välrenommerad äldreomsorg och boenden där trygghet och gemenskap står i fokus. Med service, apotek och vårdcentral på nära håll blir livet enkelt och bekvämt, oavsett var i livet du befinner dig.


Nya bolåneregler, nya möjligheter
Kanske är steget till din nästa bostad närmare än du tror. Från 1 april gäller nya bolåneregler – vilket kan göra det möjligt att ta steget snabbare än planerat, oavsett om det är din första bostad eller något större där allt och alla får plats. Vet du vad de nya reglerna kan betyda för dig?

Anmäl intresse
Genom att anmäla ditt intresse får du en plats i kön för att välja en bostad. Du godkänner också att ta emot information om våra projekt.





















